A first-of-its-kind facility in Oregon, Benton County Crisis Center offers voluntary short- and long-term crisis care, available 24/7 to those in need.
In 2022, Mental Health America revealed a startling fact: Oregonians struggle with mental health more than any state in the country, and Oregon ranks 48th in behavioral health outcomes. Seeking a better way to care for those in need, Benton County, local law enforcement, and healthcare providers partnered to imagine an alternative model that could relieve pressure on overburdened emergency departments and jails.
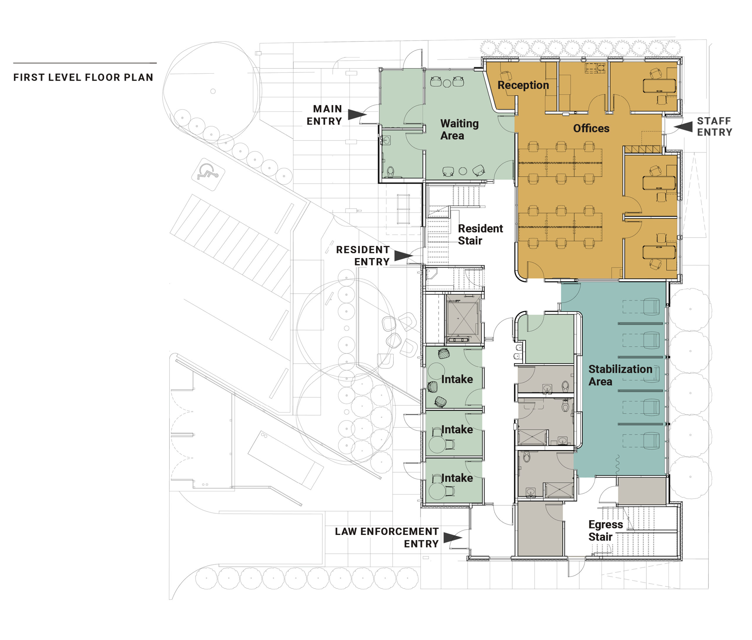
PROJECT CONTEXT Located in the heart of downtown Corvallis, Oregon (home to 65,000 residents), the two-story, 8,000 SF Benton County Crisis Center reclaims the site of a former gas station and used car lot, transforming it into a vital place of care: visible, welcoming, and open to all. Rather than being pushed to the margins of the city, the building is centrally located to ensure that the services offered inside are seen as part of everyday life, helping to normalize behavioral healthcare and reduce the stigma that too often surrounds it. The Crisis Center’s siting communicates an intentional message—that care should be accessible, integrated, and embraced within the fabric of the community.

PROGRAM
Occupying a 10,000 SF site, an efficient floor plan is able to accommodate the varying needs and pathways of each client. Recognizing that the presence of uniformed officers may create trauma for voluntary clients, the design team also worked closely with local law enforcement to create a separate entry for clients who arrive under their care.


ARRIVE
Replacing the sterility of traditional behavioral health spaces, the waiting room welcomes visitors with natural light and gentle forms that encourage calmness and dignity.


STABILIZE
After arrival, some clients might enter short-term stabilization where durable materials, muted colors, and comfortable seating foster safety and security while supporting recovery.
EMPOWER
A dedicated mass-plywood stair and exit/entrance serves long-term clients, providing autonomy as they come and go with privacy.


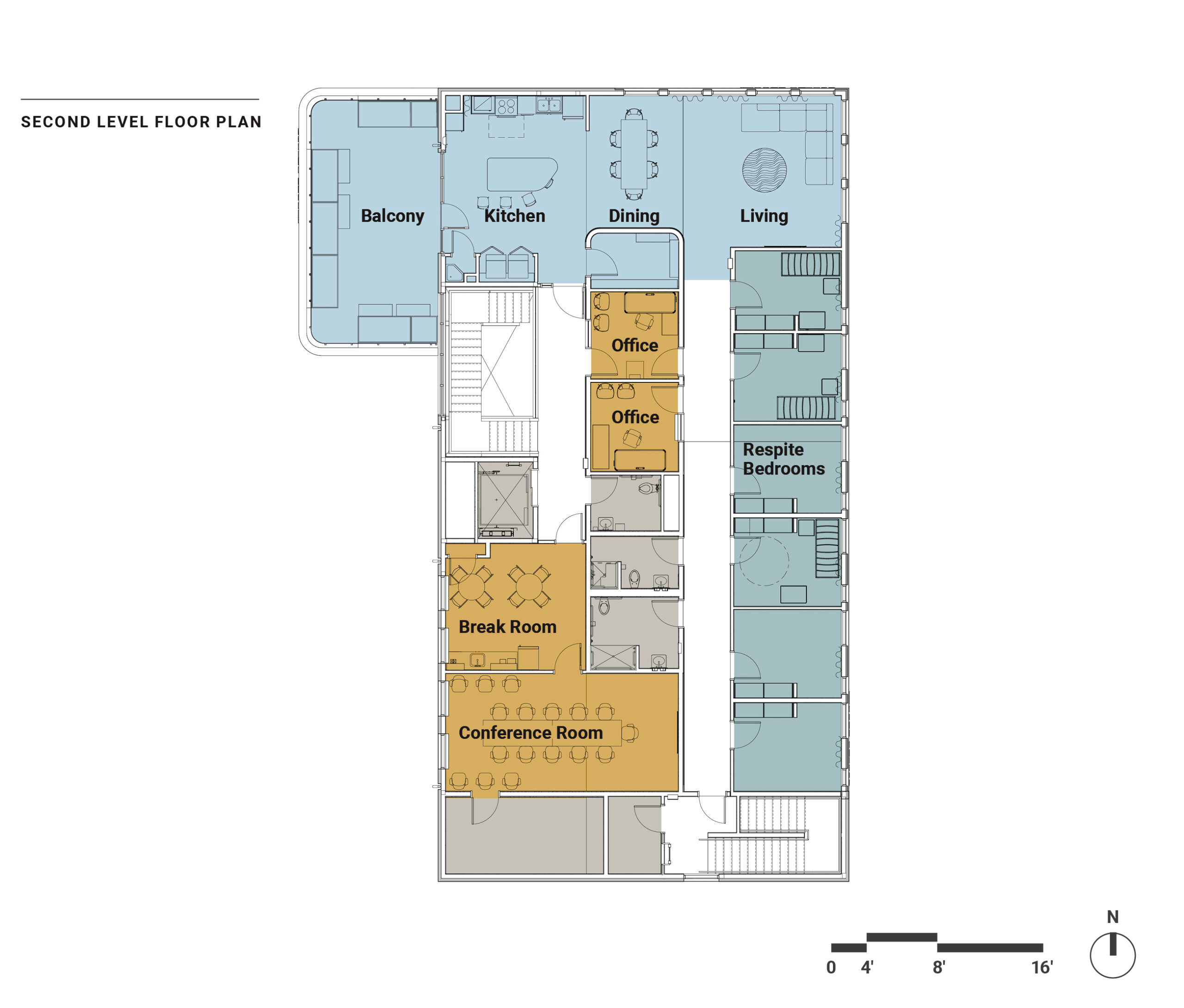
UNITE
Designed to feel like home, long-term clients share living, dining, and kitchen areas that are designed for safety while supporting community building on the path to healing.
GATHER
The biophilic use of wood and rounded walls is intended to create an environment of calmness and safety. A fully equipped kitchen allows residents to prepare food and dine together indoors or on the outdoor balcony.

HUMAN-CENTERED DESIGN
The design team vetted all materials before installation. Protective elements are “hidden” in plain sight, safe guarding both clients and staff while supporting a hospitable environment.
REST
Private bedrooms are furnished with a bed, nightstand, and desk. Built-in shelving provides space for personal belongings to help create a more dignified environment.
![]()
—TINA KOTEK, GOVERNOR OF OREGON, SPEAKING AT THE RIBBON CUTTING CEREMONY
